APEMS "Le Cube"
Transformation de deux salles de cours en un APEMS, collège des Alpes
Pully
Dates
Projet : Hiver/Printemps 2017
Chantier : été 2017
Équipe
Alan Hasoo, chef de projet
Germain Brisson
Thibaud Sulliger
Artistes
atelier bingo
Photos
Alan Hasoo
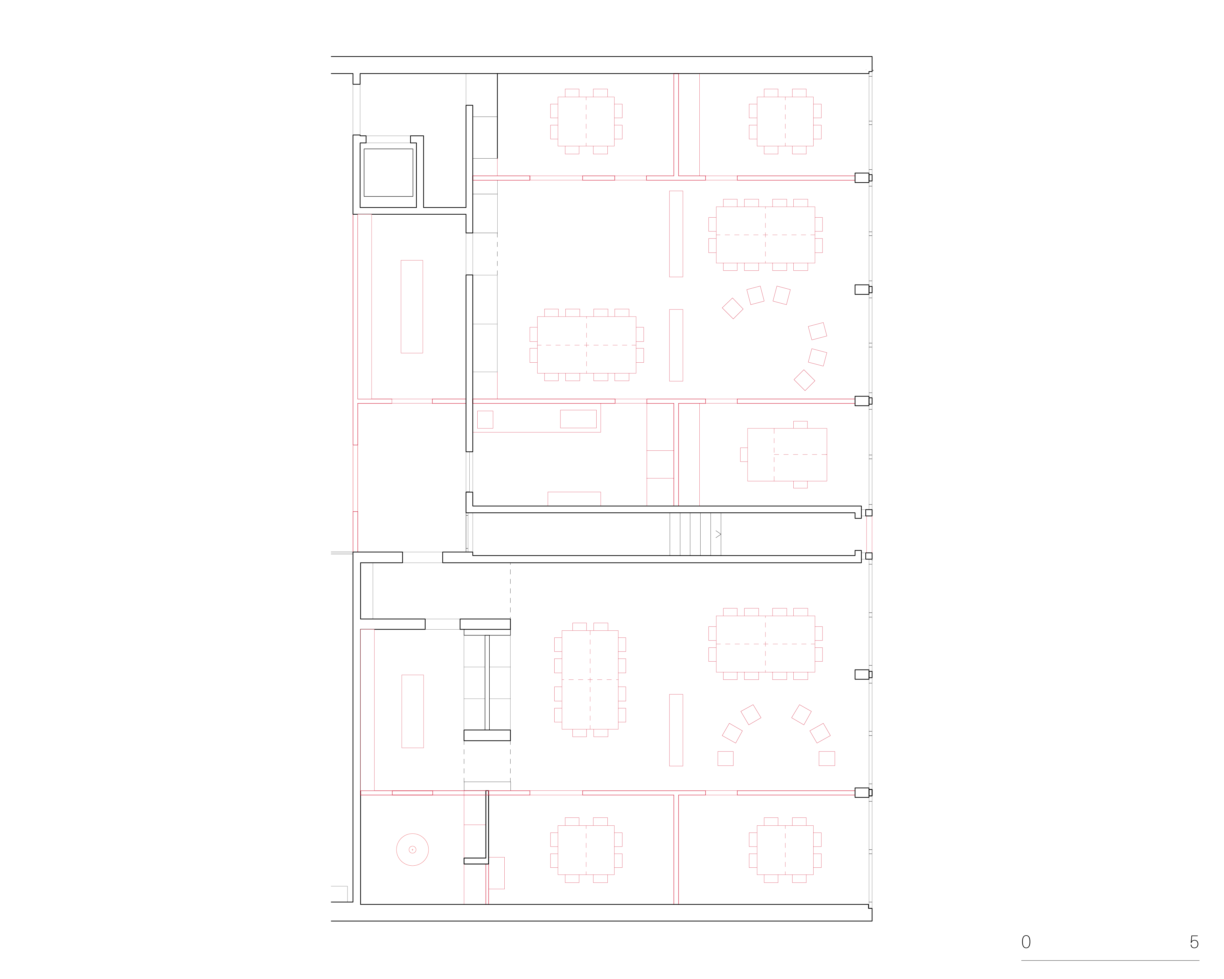
Suite à une réorganisation de la distribution des élèves dans les différents collèges de Pully, le Collège des Alpes est devenu un collège uniquement primaire, rendant obsolète une partie de ses équipements. Pour faire suite aux travaux entreprise à l'été 2016, qui avait notamment vu déménager la salle de science dans le Collège Arnold Reymond, les espaces du rez inférieur du Collège des Alpes ont été repensés et une surface de presque 300m2 a été dégagée en vue de la création d'un APEMS pour environ 85 enfants.
Les locaux ont donc été repensés pour correspondre à leur nouvelle fonction, notamment par la création d'espaces de vestiaire et la division de la surface en différents sous-espaces. Outre un bureau de direction, une salle du personnel et une cuisine professionnelle, le reste des locaux est entièrement à disposition des enfants, qui peuvent se répartir entre petites salles de travail et grandes salles de vie.
PUBLICATIONS
05/20 Archello
06/23 CONSTRUCTION & BÂTIMENT
 
