Villa années '30


Rénovation et transformation d'une villa années 1930


Lausanne





Dates


Projet : Printemps/été 2017


Chantier : automne 2017/printemps 2018





Équipe


Germain Brisson, chef de projet


Alan Hasoo


Thibaud Sulliger


Marta Kazimierczak





Photos


Alan Hasoo




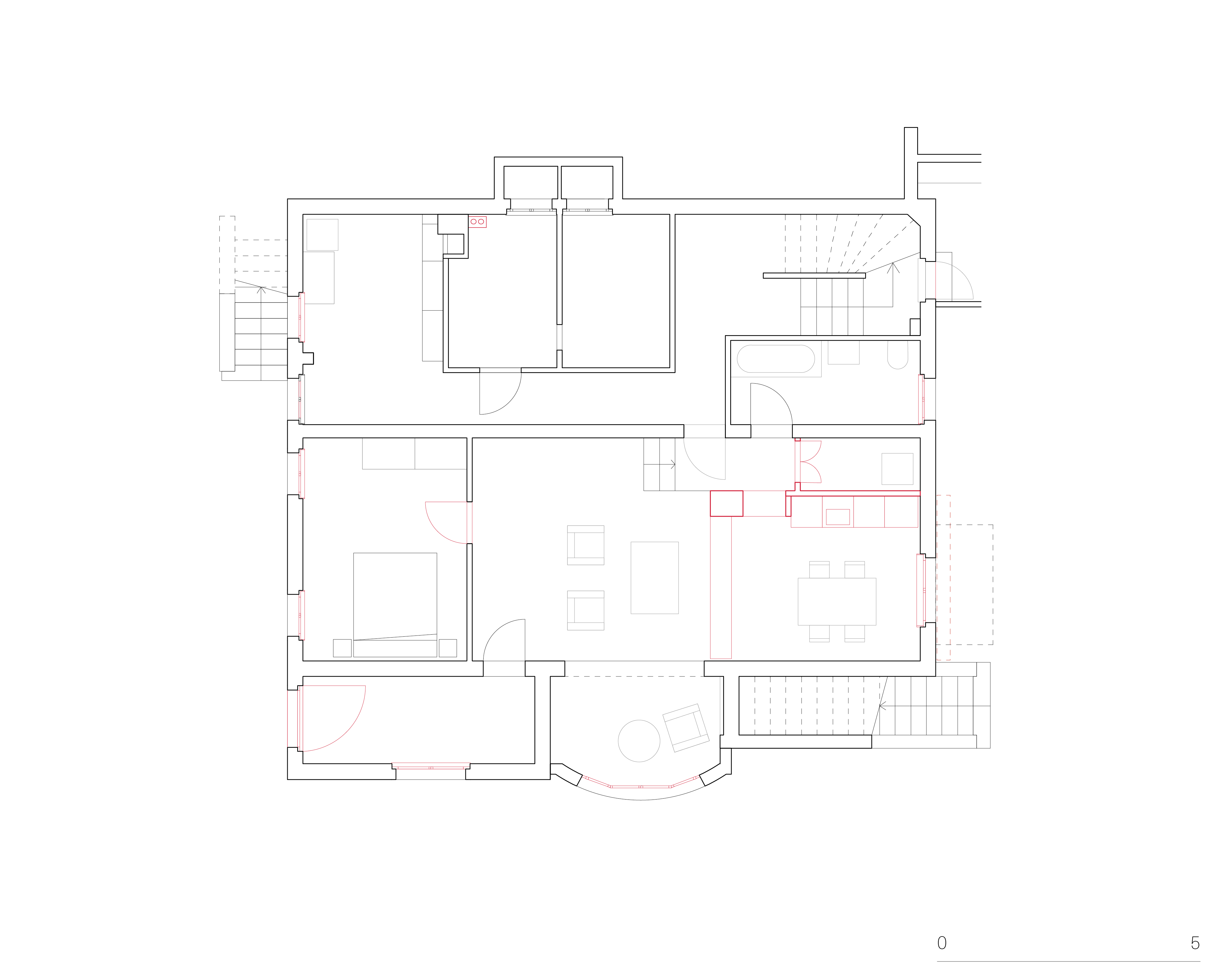
Implanté sur les hauteurs des flancs de la vallée de la Vuachère dans le quartier résidentiel de Chailly, la villa de trois étages, construite dans les années 1930 jouit d’une implantation sud-est sur sa façade principale et de magnifiques percées visuelles sur les premiers contreforts des coteaux du Lavaux.
Dans le cadre de son rachat, l’intervention architecturale accompagne la partition de l’objet en lots distincts souhaitée par le jeune couple. Au niveau inférieur sur le jardin, l’appartement indépendant de deux pièces est repensé sans ses cloisons qui révèle un jeu de niveau caractérisant chaque espace. Dans les combles, les pièces sont redistribuées pour accueillir un appartement semi-indépendant destiné à accueillir une colocation d’étudiants autour de l’ajout d’une cuisine. Aux étages nobles sur rue et au premier étage, l’appartement de la famille s’installe. Outre la réfection de toutes les surfaces quelques articulations clefs sont repensées. Au premier étage, la salle de bains parentale est retravaillée tandis qu’au rez de chaussée une bande de service sur la façade nord permet de repenser les interfaces avec l’extérieur par l’ajout d’un vestibule tout en clarifiant la relation entretenue par la cuisine et la salle à manger.



PUBLICATIONS


07/18 Dezeen
07/18 Divisare
07/18 Subtilitas
07/18 Afasia
08/18 Construction & Rénovation
01/19 Umbauen+Renovieren
01/19 Archello
09/21 Espaces contemporains