Corseaux Marguery


Rénovation et transformation d'une villa années 1920


Corseaux





Dates


Projet : Hiver 2017-2018


Chantier : Printemps-été 2018





Équipe


Alan Hasoo, chef de projet


Germain Brisson


Thibaud Sulliger


Marta Kazimierczak





Photos


Alan Hasoo




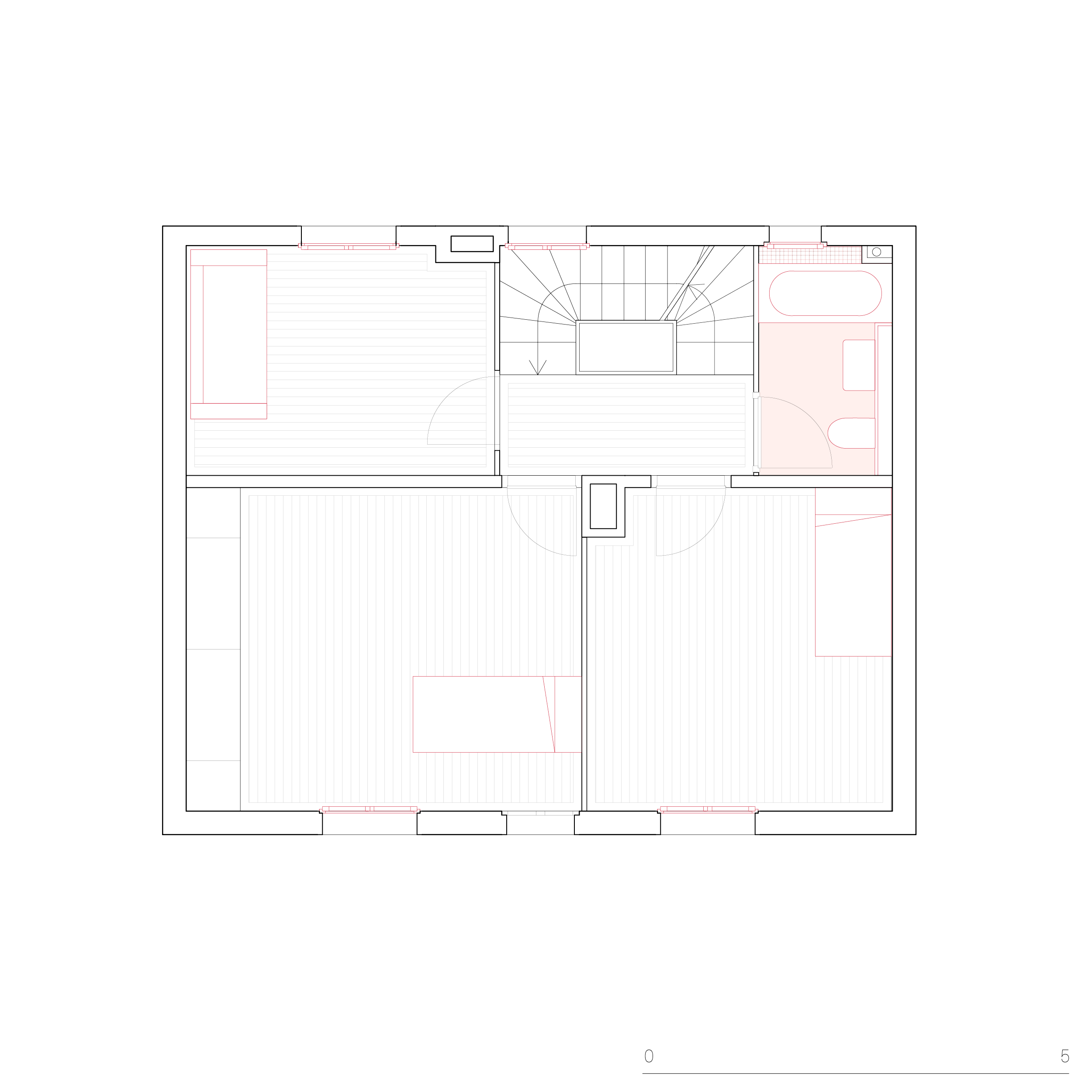
Située dans le quartier du Marguery à Corseaux, la villa des années 1920 profite de belles percées sur la région veveysane et le Léman. Acquise par un jeune couple avec deux enfants, cette villa présente un style architectural en décalage par rapport aux bâtiments voisins, à mi-chemin entre le chalet et la maison à colombage. Elle est néanmoins inscrite, au même titre que tout le quartier, à l’inventaire des sites construits à protéger en Suisse.
Dès lors, l’intervention se doit de respecter plusieurs critères, notamment sur les sujets sensibles que sont l’adjonction de nouvelles lucarnes et le remplacement des fenêtres. Après discussion avec la section des monuments et site, les lucarnes sont justement proportionnées et les fenêtres soigneusement choisies pour valoriser la maison. À l’intérieur, les lucarnes permettent l’aménagement des combles avec une suite parentale qui s’ouvre, depuis la chambre, sur le bâtiment Nestlé de Jean Tschumi et les Alpes et, depuis la salle de bain, sur les coteaux du Lavaux. Au rez, les cloisons sont largement ouvertes et l’espace est repartitionné par un meuble de rangement servant aussi bien la cuisine que la salle à manger et le salon avec une bibliothèque ouverte.



PUBLICATIONS


12/19 Wohnrevue 
10/19 DIVISARE 
09/09 Dezeen
08/19 FAIRPOINT Magazine
07/19 AFASIA 
05/20 Archello