Pernessy


Reconstruction d’une villa années 1970


Mont-sur-Lausanne





Dates


Projet : Mars 2018 - Été 2019


Chantier : Automne 2019 - Pintemps 2020





Équipe


Alan Hasoo, chef de projet


Germain Brisson


Thibaud Sulliger


Clea di Martino





En consortium avec


Studio Brasil, Diana Brasil


Alan Hasoo





Photos


Alan Hasoo




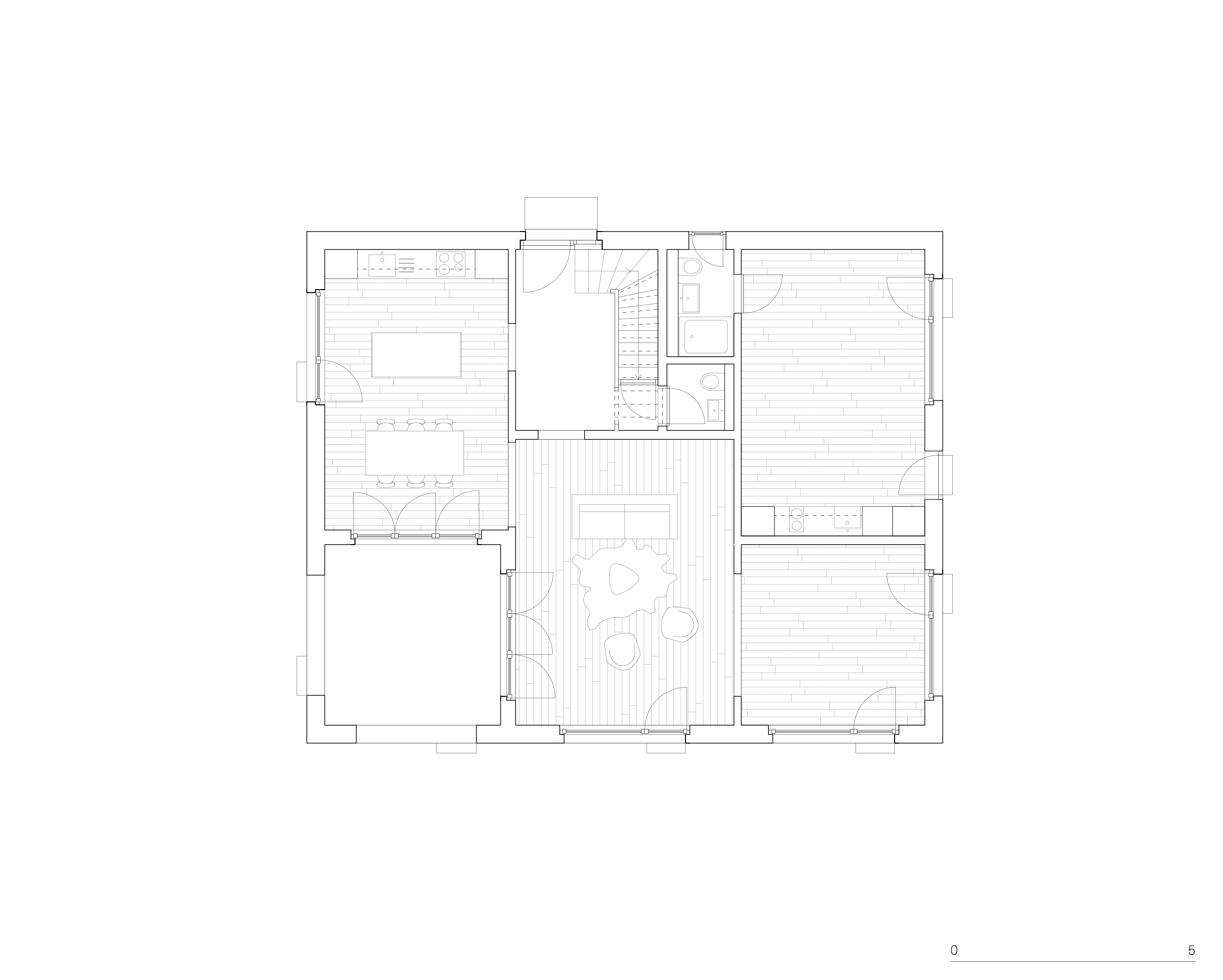
Dans la première phase d’études, plusieurs scenarios d’intervention sont envisagés. Face à la faible qualité de la construction, symptomatique des années 1970, ainsi qu’un système constructif contraignant, les maîtres d’ouvrage privilégient une variante de transformation lourde : la partie hors-sol est démolie, ne laissant que le sous-sol et le radier existant. Sur ces appuis existant, une nouvelle construction en brique monolithique propose de nouveaux volumes, plus généreux et mieux adaptés aux demandes des propriétaires.

Le projet réinterprète un langage de construction traditionnel, avec des matériaux et une composition classique qui privilégient de larges ouvertures sur le paysage. Au rez-de-chaussée le plan contracte toutes les distributions en les intégrant aux espaces de vie, privilégiant les grandes diagonales à travers les différents espaces tandis qu’au 1er étage l’emphase est portée sur le corridor, qualifié comme une pièce à part entière par ses dimensions et sa lumière traversante. 



PUBLICATIONS


04/21 SUBTILITAS