Haute-vue
Transformation et extension d'une villa familiale
Lausanne
Dates
Projet : automne 2020 - été 2022
Chantier : -
Équipe
Thibaud Sulliger, chef de projet
Germain Brisson
Alan Hasoo
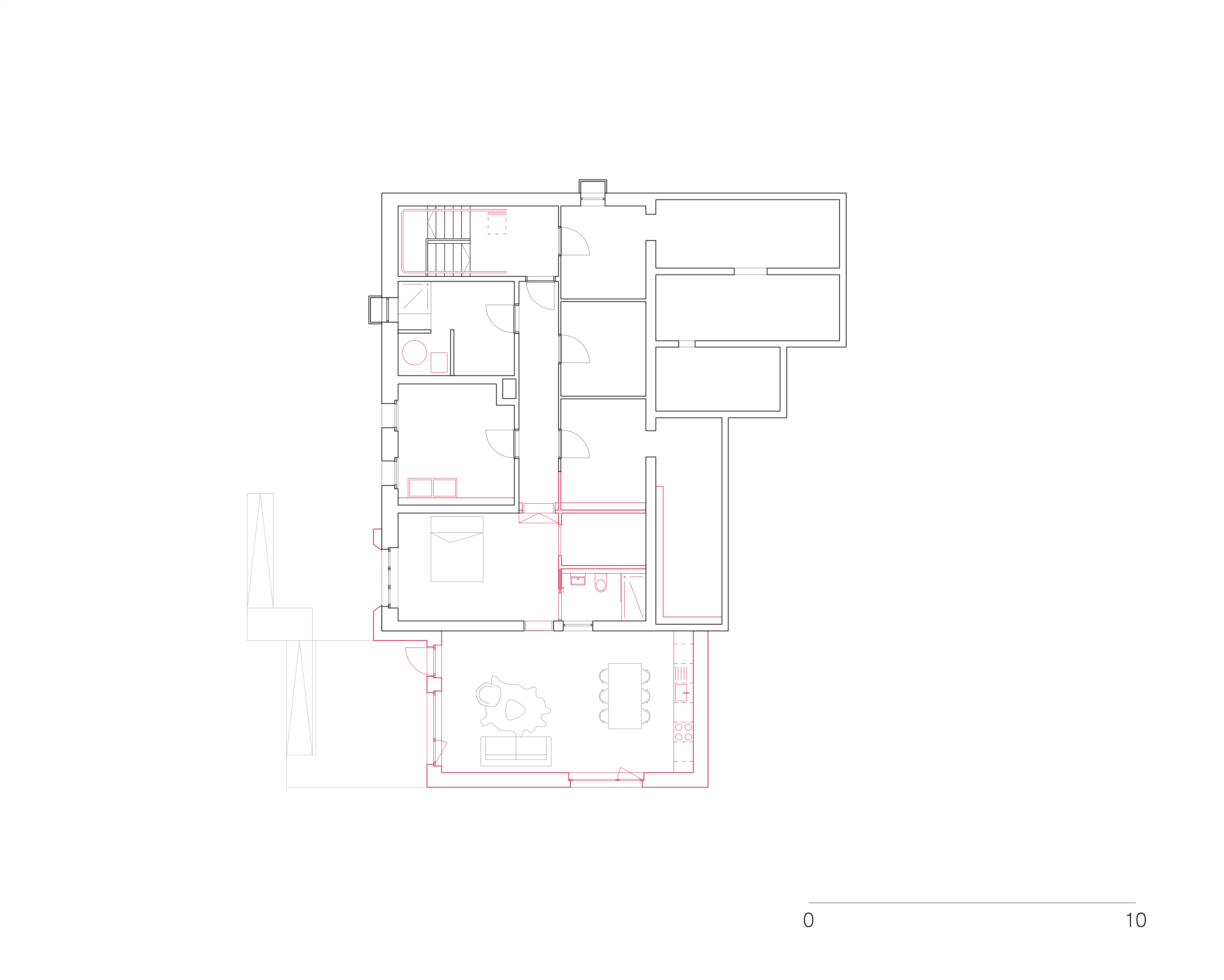
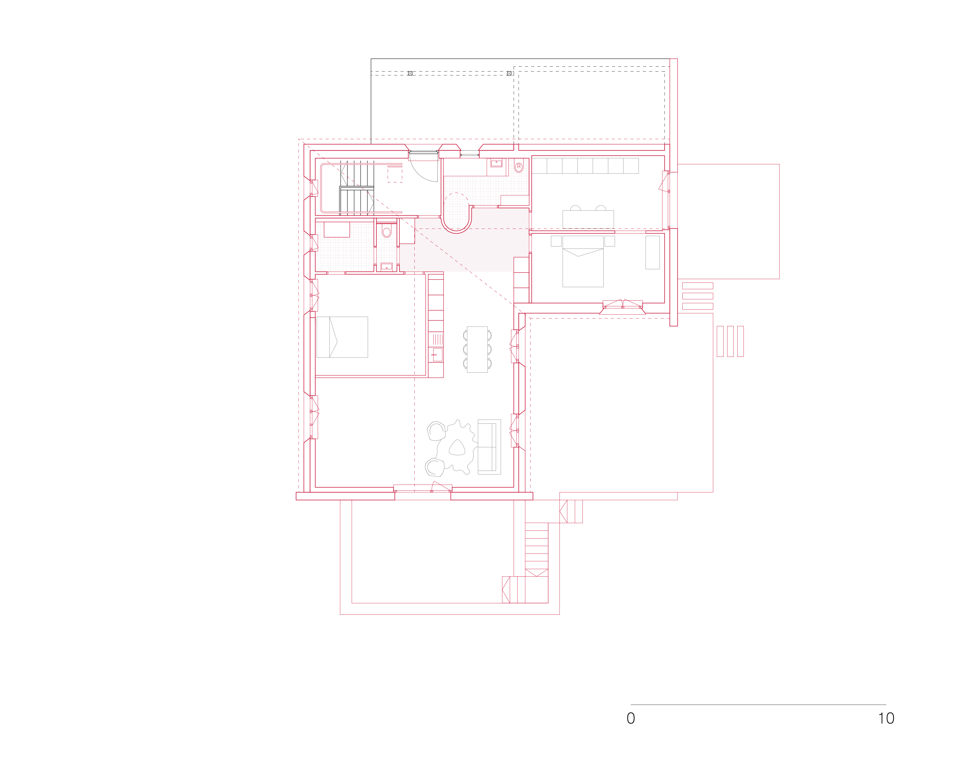
Implantée dans les hauteurs de Lausanne, la villa familiale des années 1950 est amenée à entrer dans une nouvelle phase de vie. Les propriétaires historiques, bientôt à la retraite, veulent limiter l’espace qu’ils occupent, au profit de la famille de leur fille et ses trois enfants. La villa est donc entièrement reconfigurée pour cette nouvelle organisation.
Le projet prévoit également l’extension du volume pour offrir deux chambres supplémentaires à l’appartement du rez et un 2 pièces indépendant au rez inférieur.
Un volet important du projet consiste également en une rénovation énergétique poussée afin de garantir une quasi-autonomie de la villa et des performances thermiques élevées.






