Stand Nyon
Concours pour l'éco-quartier du Stand
Nyon
Dates
Concours : mars 2014
Équipe
Germain Brisson
En collaboration avec
Anne-Chantal Rufer
fsar.ch, Frédéric Seydoux & Tanguy Auffret-Postel
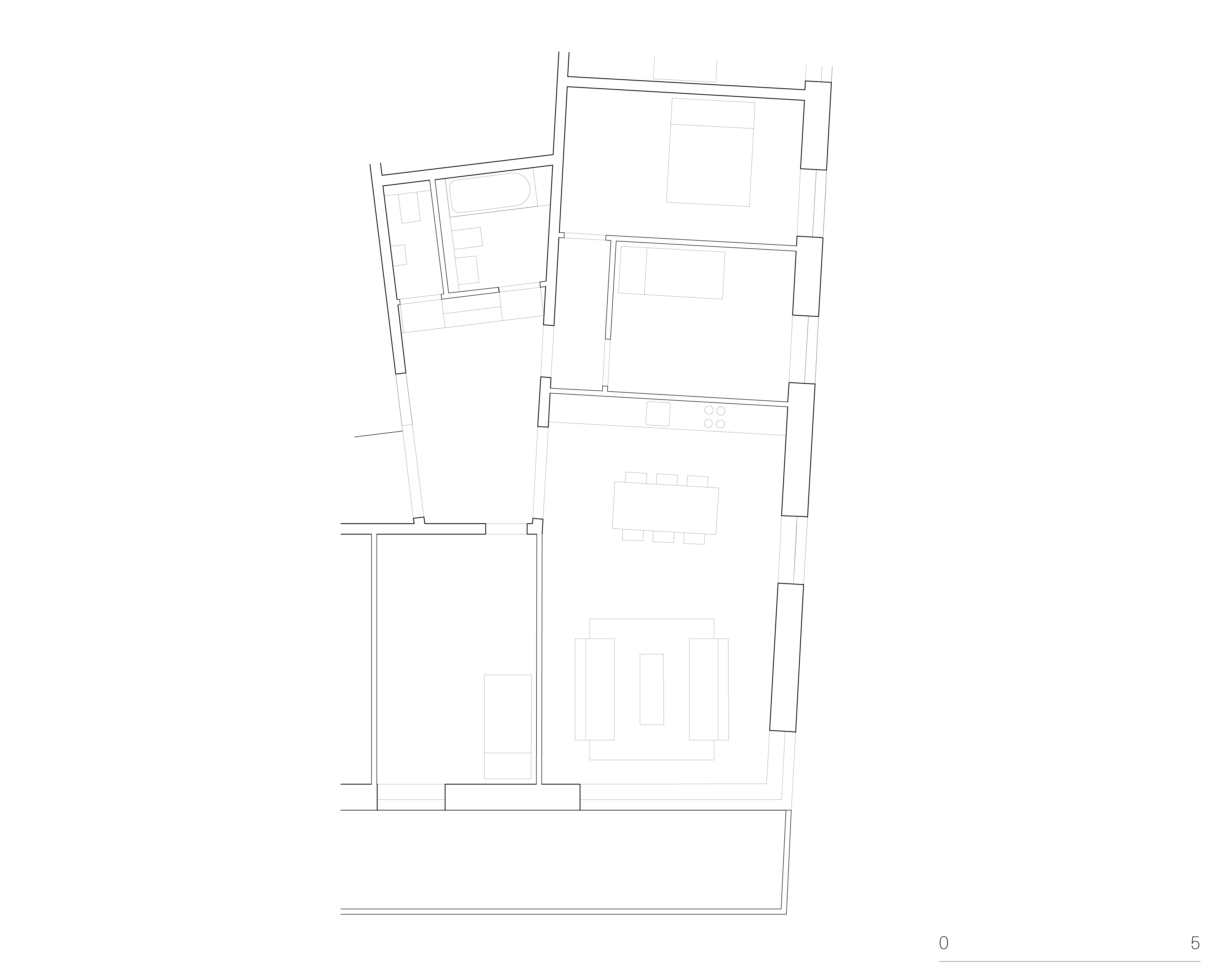
Situé en bordure de ville et en lisière de forêt, le projet prévoit 126 nouveaux logements en habitat coopératif. Afin de composer des gabarits bas dans ce contexte péri-urbain, le programme est répartit dans 5 volumes massifs abritant chacun 6 à 7 appartements par étage.
Dans ces plots, les nombreuses attentions apportés aux locaux de circulations tendent à les définir comme de véritables espaces de rencontres : des courettes liées aux entrées d’appartements apportent une qualité de lumière, la présence de réduits sur les étages libère les appartements et qualifie davantage ces lieux de passage, le couplage des entrées sur chaque palier facilite la socialisation entre voisins.
Les types d’appartements jouent avec la profondeur des volumes et organisent une séquence vestibule-séjour en diagonale afin de profiter des angles des bâtiments. Les séjours profitent ainsi tous d'une double orientation, soit par l’angle soit par le décalage de l'enveloppe extérieure.
De grands appartements en cluster occupent les attiques déroulant leurs espaces de vie sur plusieurs façades et organisent plusieurs cellules d’habitat. Ils proposent une interprétation pour un mode d'habiter ensemble. Le système constructif rationnel se constitue de noyaux stabilisateur en béton et d’une structure en bois. Tous les matériaux de construction et de revêtement répondent aux critères Minergie P Eco fixés par le maître d'ouvrage. Les 5 volumes disposés sur un espace vert continu épousent la topographie du lieu. Dans ce jardin, un réseau de placettes et de noues, mettent en relation les salles communes.




