︎
︎
︎
INDEX
PROJETS
FRIPSQUARE
CAFÉ
MAUPAS
TOURTERELLE
FRANÇOISE ROMAINE
MATINES
ALLIÈRES
INTERNEF
CORSEAUX CENTENAIRE
HAUTE-VUE
LANGUEDOC
OMBREVAL 2
CULLY GRANDVAUX
VINET
MONTOLIVET
MOSTO
MOLLIETTES
PERNESSY
BREW SOCIETY MORGES
BREW VEVEY
CORSEAUX MARGUERY
PRIEUR
É
VILLA ANNÉES ‘30
APEMS "LE CUBE"
PLATEFORME
SWISS PAIN
OMBREVAL
ESCALIERS DE BILLENS
COLLÈGE A. REYMOND
CRÈCHE CENTENAIRE
COLLÈGE ANNEXE OUEST
CAFÉ-GALERIE L’ATELIER
ÉTUDES
HAUTE-VUE 8
S
ÉCHEY
BOULEAUX
CSEM
JET
ÉE
SALAVAUX
CONCOURS
SERVAN
RAIFFEISEN
MARLY
SAINTE-CROIX
LA NEUVEVILLE
STAND NYON
CHÂTEAU CHILLON
PROFIL & ÉQUIPE
GERMAIN BRISSON
ALAN HASOO
THIBAUD SULLIGER
ENGAGEMENT
JOBS
PUBLICATIONS/PRESSE
CONTACTS
︎ Précédent
Index
Suivant ︎
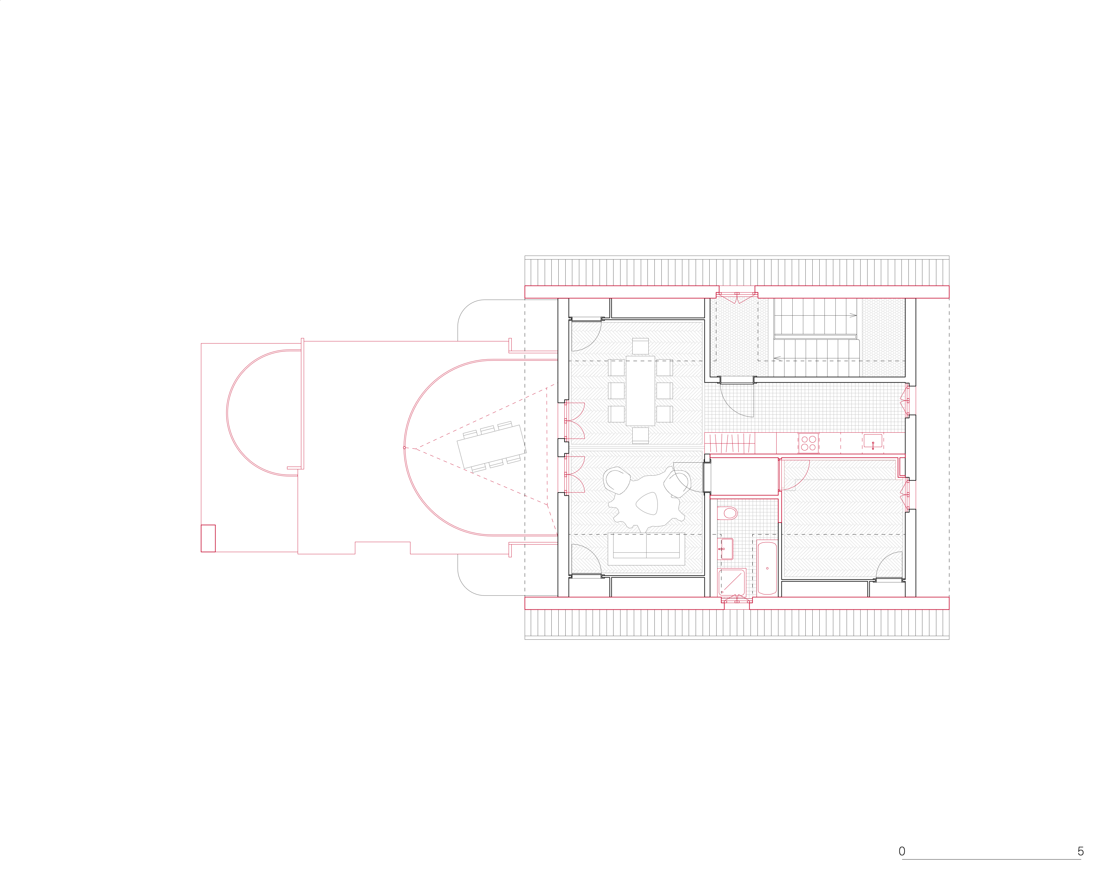
Allières
Rénovation énergétique et transformation d’une Villa
Lausanne
Dates
Projet : en cours
Chantier : -
Équipe
Alan Hasoo, chef de projet
Germain Brisson
Thibaud Sulliger